top of page

Hotel Karos Brugges

מלון Karos

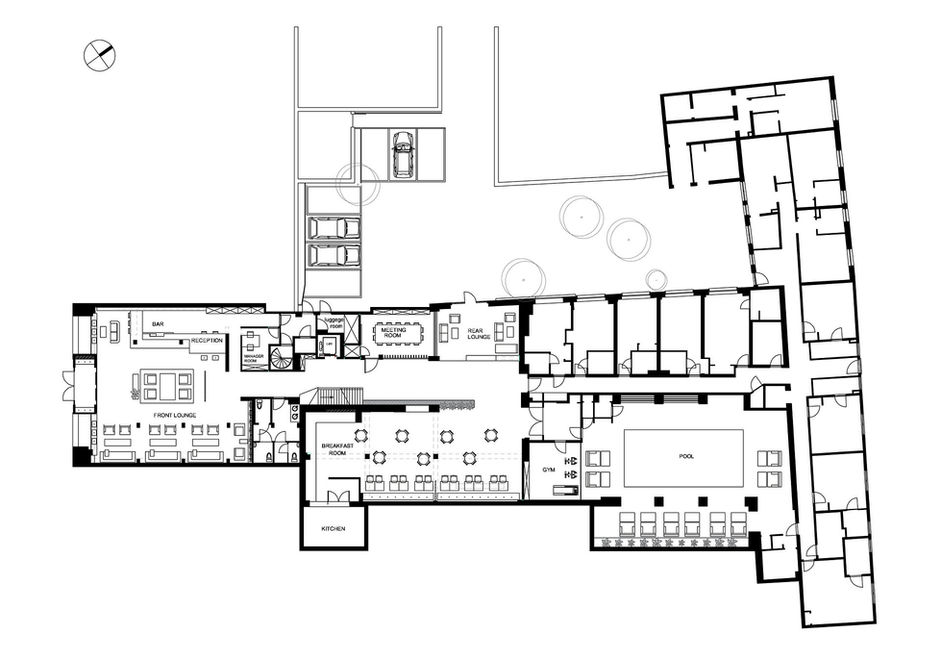
Program: Business and Leisure Hotel, 63 rooms | Location: Old City of Brugges, Belgium | Area: 3200 sqm 

פרוגרמה: מלון עסקים ופנאי, 63 חדרים | מיקום: העיר העתיקה של בורגס, בלגיה | שטח: 3200 מ"ר | 

Ariel Goshen Architects and Design Tel Aviv Israel
bottom of page